产品分类

  液压站
  液压缸
  电液推杆
  电液动执行器
  炉顶水枪(炉顶打水雾化装置)
  可变槽角犁式卸料器
  电液动三、四通分料器
  电液动扇形闸门
  电液动腭式闸门
  电液动平板闸门
  电液动料流插板调节闸门
  缓冲锁气漏斗
  胶带自控液压拉紧装置
  全自动液压调正装置
  露天胶带机脱排水装置
  称量漏斗
  自控除尘卸料装置(卸料车)
  碎渣机
  启闭机
  电液动矩形单叶片通风蝶阀
  星形卸灰阀
  电液动插板式双层卸灰阀
  电液动蘑菇头双层卸灰阀
  防爆阀
  泄压阀
  单、双层棒条阀
  电动锁风翻板阀
  重锤式锁风翻板阀
  百叶圆式窗式阀
  浆液阀(手动、电液动)
  电液动闸阀
  高温蝶阀
  电液动蝶阀
  电液动两路换向阀
  电液动球阀
  标准件系列
  电液动犁式卸料器
  气缸
  栈桥冲洗器
  液压拉紧装置
  可逆配仓带式输送机
  液压气动缸
  电厂检查门、吊架
 
说 明  

     【电液动炉顶水枪】高炉炉顶智能雾化打水降温系统

高炉炉顶智能雾化打水降温系统

     

 

一、系统应用
    高炉冶炼过程中炉况是波动的,炉况失常时炉体的温度变化具有突发性、不稳定性,内部温度甚至可达到1540度左右,对高炉炉体会造成严重损坏。为了保温,在炉体的外壳包附有耐热材料,为了尽量降低耐热材料的温度,延长使用寿命,炉顶冷却降温对保证高炉及其后续设备正常运行具有重要意义。
     现有的炉顶冷却装置相对很简单,其直接将水管引上炉顶以进行水柱式冷却,水管的出水口安置在炉顶中间,在水管上接有水阀用以开闭及控制冷却水的流量,水流落下在顺炉壁留下同时带走热量,如此达到冷却炉壁的目的。但是,这种炉顶冷却装置的使用效果欠佳,水流直接落在炉顶一个很不的范围,在顺炉壁流淌,受炉壁外形的影响,必然造成部分炉壁局部变形:为了提高冷却效果最常见的方式就是加大冷却水的流量,但是这种方式浪费了大量水资源而实际对冷却效果的提高并没有太大的帮助。
     TY高炉喷雾冷却系统是本公司专门针对高炉冷却而设计的,可根据不同的温度自动调整喷雾量,将高度雾化的水雾覆盖炉体,迅速降温,在短时间内将炉体温度降低到设定的正常温度,真正做到直接降低炉体温度。
二、系统使用
     一座高炉(2500m3以下级)安装使用8只水枪,分为二组:每组为四支,每组由一个供水的电动阀门控制,提供水源。高炉降温启动点分为两点:250度和350度。当高炉的炉内温度达到250度时,集控室自报警,同时一组打水枪的电动阀门和四支水枪开启炉内喷水降温,如果设定时间内降温不明显,温度继续升温或高炉内温度达到350度,集控室接报同时打开另一组电动阀门及四支不枪,八支水枪同时使用达到迅速降温的效果。
三、系统简介
    TY高炉炉顶喷雾冷却系统核心部件为电液动液压高温防堵喷枪,为我公司开发研制的新型液压产品系统。它利用液压推杆作为动力源,活塞杆作高频次的往复运动,不断将进入喷嘴内的水加压后从细小的喷嘴头压出,形成雾状颗粒水珠,达到良好的雾化冷却效果。全系统智能控制,自动降温,全不锈钢制作枪体,密封性好,非工作状态下,不向炉内滴水,杆头成锥形状,保证在不工作时堵住喷嘴有效地使灰尘不会进入枪体影响下次工作。
    系统用新型液压打水枪用水直接接高压工业水管,无需接入气管,结构科学合理,使用安全可靠,喷雾均匀稳定。
    系统采用与炉体温度匹配变量喷雾冷却,将温度范围分成不同的控制区段,避免了水枪频繁起动和过度喷水,使炉体温度波动平滑稳定。系统温度控制范围大,应付故障能力强。
    系统采用西门子PLC进行远程自动控制,系统安全可靠,可操作性强:喷雾冷却启停温度的上下限可随时进行调整,在温度低时,还可手动减少喷雾量:系统反应敏感度可同步进行调整:人机交流性能好。
    系统运行模式有两种:一种是手动操作模式,该模式允许您单机控制启动和停止;另一种是自动运行模式,在这种模式下,系统自动控制启动和停止,无须人为干预,并通过远程站到主控室进行实时监控。喷雾系统自动检测上升管的温度,当温度平均值没有达到启喷温度时系统处于待机状态,一旦温度平均值超过触发温度,喷雾系统自动投入运行,当温度平均值低于停喷温度时系统退出运行,进入待机状态。

四、系统组成
雾化打水降温装置
配有8支打水枪,适用于2500M3以下级的高炉;
阀门 8台
五、系统特点
1、全智能控制,远程操控,操作方便、可靠;
2、新型液压水枪,喷雾均匀稳定,喷头防堵;
3、更换备件灵活,拨出枪体就可更换;
4、自动喷雾,降温迅速;
5、采用进口瑞典铱诺热电偶,德国西门子PLC、继电器等,系统控制精度高、性能稳定、工作可靠。
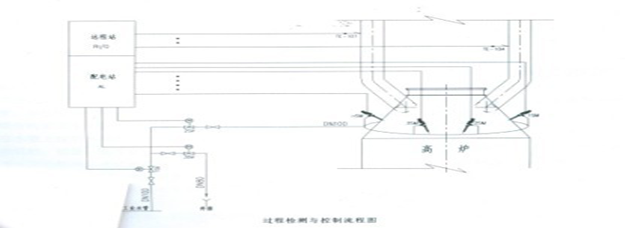
六、各部件连接示意图见过程检测与控制流程图

 

 


<<<上一页          下一页>>>